Kod
1010481
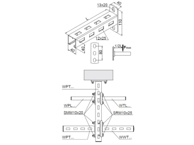
Wysięgnik WPT500 (STD) | 710950 Baks
Informacja o Produkcie
Opakowanie zbiorcze zawiera 20 szt.Alternatywny kod produktu: WPT500Podwieszanie tras kablowych, oraz mocowanie koryt, drabin kablowych,rur i innych elementów, szczególnie tam gdzie jest mało miejsca na trasy kablowe (np. nad sufitami podwieszanymi). Możliwość zastosowania jako wspornika sufitowego.
- Producent Baks
- Wymiary 0.123m x 0.043m x 0.523m
- Seria producenta WPT
Wysięgnik do kablowego systemu nośnego
- Długość 515 mm
- Szerokość 40 mm
- Wysokość 110 mm
- Model Wysięgnik ścienny
- Obciążenie dopuszczalne 1.4 kN
- System utrzymania sprawności działania E30 Nie
- Materiał Stal
- Stal nierdzewna Nie
- Gatunek materiału Inne
- Zabezpieczenie powierzchni Ocynk ogniowy zanurzeniowy
Do pobrania
Wszystkie obrazy





































