Korytko kablowe MKSMU 60x100, St, FS MKSMU 610 FS (3m) | 6059230 Obo Bettermann
Korytko kablowe MKSMU 60x100, St, FS MKSMU 610 FS (3m)
Informacja o Produkcie
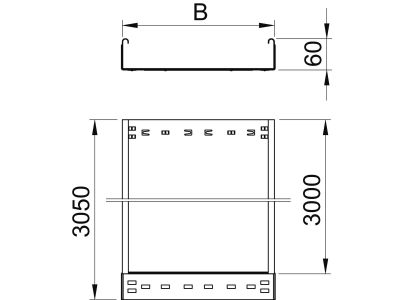
Długość 3 m.Alternatywny kod produktu: MKSMU 610 FSSystem średnio-ciężkich koryt kablowych, nieperforowanych, o wysokości boku 60mm. Koryto kablowe z szybkozłączem. Ciągłość elektryczna na całej długości jest zagwarantowana bez użycia dodatkowych elementów. System koryt kablowych posiada certyfikat VDE. O
- Producent Obo Bettermann
- Seria producenta MKSMU-Serie
Korytko kablowe
- Wysokość 60 mm
- Szerokość 100 mm
- Grubość materiału 1 mm
- Długość 3050 mm
- Przekrój użyteczny 5800 mm²
- Perforacja boczna Nie
- Perforacja montażowa w części dolnej Nie
- Układ otworów montażowych NATO Nie
- Model Zintegrowany łącznik
- Model szerokorozpiętościowy Nie
- System utrzymania sprawności działania E30 Nie
- Materiał Stal
- Stal nierdzewna Nie
- Gatunek materiału Inne
- Zabezpieczenie powierzchni Ocynk galwaniczny
- Kolor Brak
- Z pokrywą Nie
Do pobrania
Wszystkie obrazy
































