Łuk kanału dwutorowy LKd125H38 gr.blachy 1,0mm | 531612 Baks
Łuk kanału dwutorowy LKd125H38 gr.blachy 1,0mm
Informacja o Produkcie
Opakowanie zbiorcze zawiera 4 szt.Alternatywny kod produktu: LKd125H38
- Producent Baks
- Seria producenta LKD
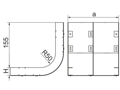
Łuk do korytek kablowych
- Zmiana kierunku Pionowy wznoszący
- Kąt zgięcia Inne
- Promień wewnętrzny 78 mm
- Nadaje się do korytka kablowego o wysokości 38 mm
- Nadaje się do korytka kablowego o szerokości 125 mm
- Grubość materiału 1 mm
- Perforacja boczna Nie
- Perforacja montażowa w części dolnej Nie
- Model Bez łącznika
- System utrzymania sprawności działania E30 Nie
- Materiał Stal
- Stal nierdzewna Nie
- Gatunek materiału Inne
- Zabezpieczenie powierzchni Ocynk galwaniczny i powlekanie
- Kolor Brak
Do pobrania
Wszystkie obrazy

